Industriilor 638 mp 0 mp

Spatiu Comercial de Vanzare – Vizavi de Mega Image, Zona Industriilor – 780.000 EUR

Oportunitate excelenta de investitie! Va propunem spre vanzare un spatiu comercial modern, situat intr-o zona cu trafic intens si vizibilitate excelenta, vizavi de Mega Image, in zona Industriilor – una dintre cele mai dinamice zone comerciale si rezidentiale din Bucuresti.

Caracteristici principale:
•Suprafata totala construita: aproximativ 600 mp (parter + etaj)
•Cladire cu fatada integral vitrata, ideala pentru branduri care doresc expunere vizuala maxima
•Acces facil auto si pietonal, cu locuri de parcare disponibile in fata cladirii
•Vecinatati de interes: Mega Image, magazine alimentare, cladiri de birouri, blocuri rezidentiale – trafic constant de clienti

Pret de vanzare: 900.000 EUR

Acest spatiu este ideal pentru supermarket, showroom, clinica, sala de fitness sau orice alta activitate comerciala ce necesita un vad pietonal si rutier intens.

Regim Inaltime 3 / S + P + 3

Etaj 3

Nr. bai 6

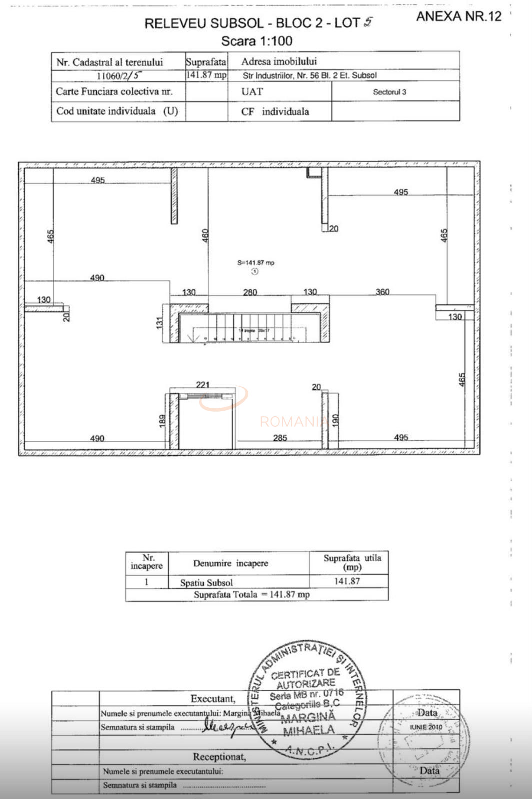
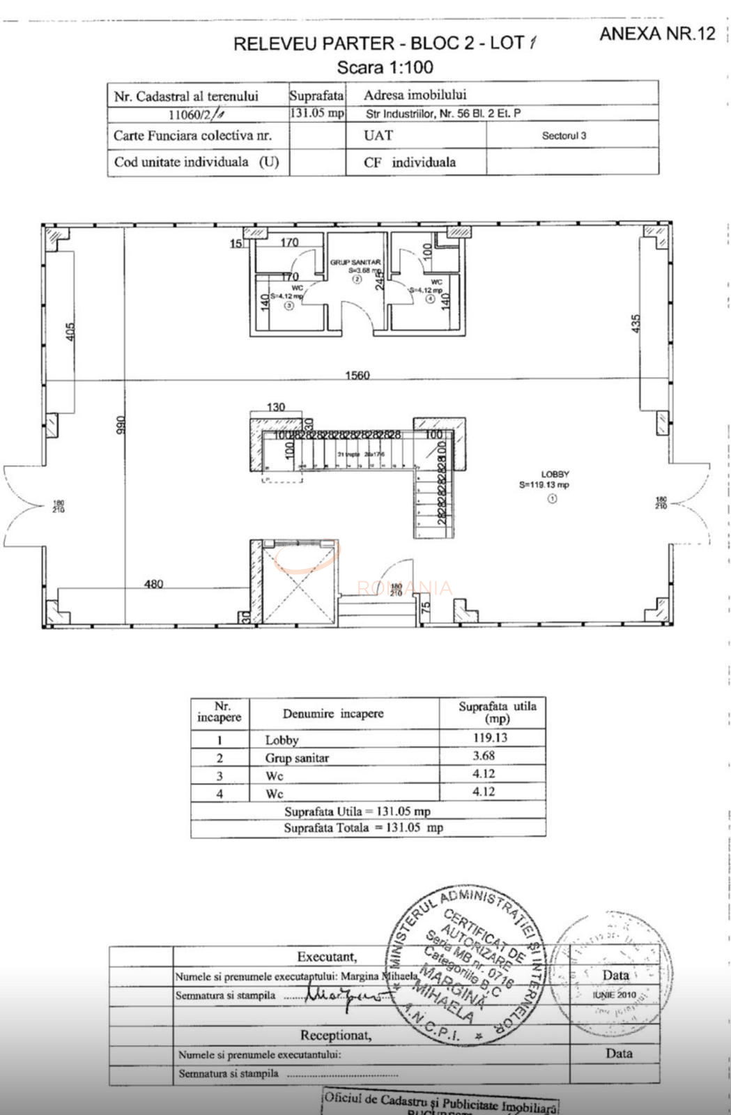
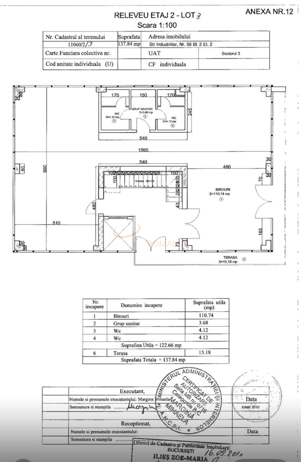
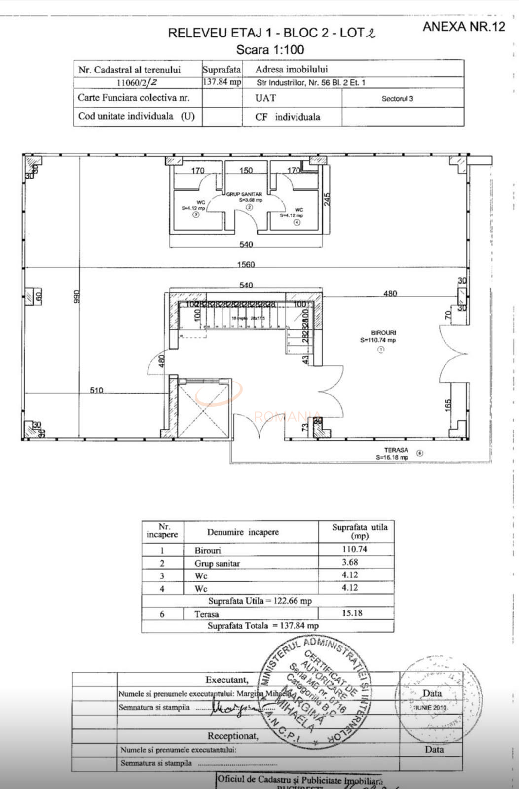
Suprafata comerciala 638 mp

Suprafata depozit 0 mp

Recent renovat 1

Disponibila incepand cu 2025-04-29

Judet Bucuresti

Oras/ Sector Sector 3

Zona Industriilor

Gps lat 44.427762

Gps lng 26.211301

Nr. terase 1

Commercial space type Centru comercial

Spatiu de depozitare

Receptie

Baie privata

Curent electric

Acoperis mansardat

Termoizolatie

Lift

Detector de gaze

Supraveghere video

Detector de incendiu

Repartitoare

Parchet

Apometre

Gresie

Telefon

Faianta

Gaz

Loc parcare exterior

Incalzire proprie

WC serviciu

Valoare proprietate (€)

Perioada (ani)

Procent avans (117.000 €)


Suma creditata 663.000

Dobanda 4.9%

Rata lunara 16.392 lei

Broker Imobiliar

Alina Rezmerita , Consultant imobiliar Vezi toate proprietatile

0317100200

Oportunitate investitie I Spatiu Comercial I Industriilor Sector 3

Pret vanzare + TVA
780.000 €

Telefon Consultant imobiliar
0317100200

Cod: REC3001351

Proprietati similare

Bucuresti, Ferdinand

Spatiu comercial 297 mp

P

839.000 EUR

Detalii

Bucuresti, Colentina, Bucur Obor

Spatiu comercial 213 mp

P

839.000 EUR

Detalii

Bucuresti, Ferdinand

Spatiu comercial 204 mp

P

810.000 EUR

Detalii

Bucuresti, Pipera

Spatiu comercial 627 mp

10

750.000 EUR

Detalii

Bucuresti, Gara De Nord, Grivita

Spatiu comercial 272 mp

P

720.000 EUR

Detalii
Spatii-comerciale vandute in Pantelimon, Bucuresti Spatii-comerciale de vanzare in Pantelimon, Bucuresti

Afla primul de cele mai bune oferte
inainte sa ajunga pe piata

Aboneaza-te la newsletter

Aboneaza-te la notificari