Aviatiei 3 camere 75 mp 2 2024

SVN Residentialist va propune spre inchiriere un apartament premium, cu mobila si finisaje noi, situat in zona Aviatiei, ce dispune de terasa spatioasa.

LOCALIZARE:
Acest imobil este situat in imediata apropiere de urmatoarele puncte: Floreasca, Kaufland, Mall Promenada.
In proximitate se afla si principalele hub-uri comerciale si de birouri ale Bucurestiului.

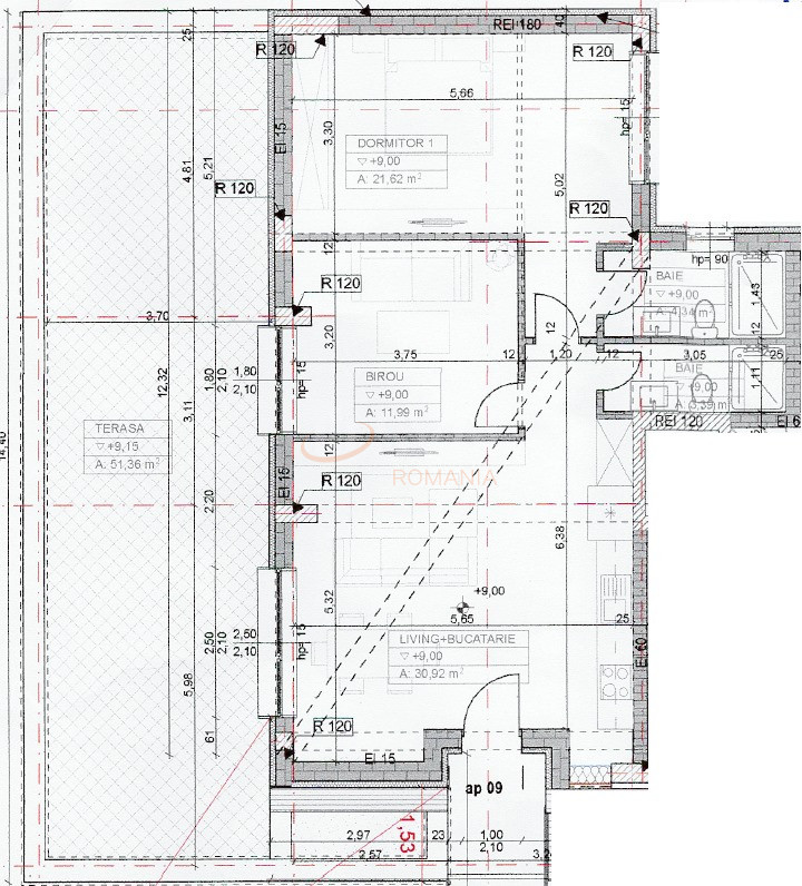
COMPARTIMENTARE:
Proprietatea este dispusa pe 3 camere:
Living-ul cu suprafete vitrate mari, bucatarie noua, open space ce contine: plita , cuptor, hota, combina frigorifica,zona dining,
2 dormitoare cu dressing, 2 bai


DOTARI
Proprietatea detine:
- centrala termica proprie, incalzire in pardoseala
- tamplarie de cea mai inalta calitate din aluminiu, geam tripan cu 5 camere de izolare fonica
- usa metalica;
- aer conditionat
- parchet triplustratificat

Imobilul are o calitate superioara, ce ajuta cladirea in pastrarea unui aspect placut pe termen lung, dar asigura si o izolatie foarte buna.


Cu deosebita consideratie,
Echipa SVN Residentialist

An constructie 2024

Suprafata construita 100 mp

Suprafata utila 75 mp

Regim Inaltime 2 / 2

Etaj 2

Nr. camere 3 camere

Nr. bai 2

Nr. balcoane 0 balcoane

Confort 1

Compartimentare Semidecomandat

Tip constructie In bloc

Status constructie Finalizat

Disponibila incepand cu 2025-04-08

Judet Bucuresti

Oras/ Sector Sector 1

Zona Aviatiei

Gps lat 44.478529

Gps lng 26.095171

Curent electric

Interfon

Sistem de alarma

Geamuri termopan

Repartitoare

Parchet

Apometre

Gresie

Faianta

Incalzire prin pardoseala

Incalzire proprie

Mobilat

Aer conditionat

Broker Imobiliar

Claudia Gavrila , Consultant imobiliar Vezi toate proprietatile

0317100200

Apartament 3 camere Aviatiei

Pret inchiriere
2.500 € /luna

Telefon Consultant imobiliar
0317100200

Cod: REA1022804

Proprietati similare

Exclusiv Discount

Bucuresti, Herastrau

3 camere cu loc parcare subteran inclus

129.26 mp 4 2006

2.300 EUR/luna

Detalii

Bucuresti, Floreasca, Barbu Vacarescu

3 camere cu loc parcare subteran inclus

150 mp 2 2006

2.500 EUR/luna

Detalii

Bucuresti, Dorobanti, Primaverii

3 camere cu loc parcare subteran inclus

86 mp 1 2018

2.500 EUR/luna

Detalii

Bucuresti, Dorobanti, Primaverii

3 camere cu loc parcare subteran inclus

105 mp 10 2022

2.600 EUR/luna

Detalii

Bucuresti, Floreasca

Apartament, 3 camere

88 mp 6 2021

2.500 EUR/luna

Detalii

Bucuresti, Dorobanti, Primaverii

Apartament, 3 camere

92.16 mp 6 2021

2.700 EUR/luna

Detalii

Bucuresti, Floreasca

3 camere cu loc parcare subteran inclus

87.36 mp 8 2020

2.300 EUR/luna

Detalii

Bucuresti, Floreasca

3 camere cu loc parcare subteran inclus

101 mp 15 2022

2.500 EUR/luna

Detalii
Apartamente 3 camere inchiriate in Aviatiei, Bucuresti Apartamente 3 camere de inchiriere in Aviatiei, Bucuresti

Afla primul de cele mai bune oferte
inainte sa ajunga pe piata

Aboneaza-te la newsletter

Aboneaza-te la notificari