Apartament, 3 camere, Bucuresti / Herastrau
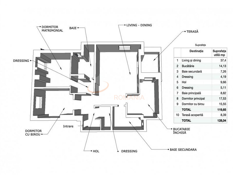
Apartamentul dispune de living-room cu dinning, 2 dormitoare (intr-un dormitor avem si un birou), 1 terasa, 2 bai si 1 bucatarie inchisa.
Proprietatea este situata la etajul 2 intr-un imobil tip vila cu 3 nivele.
Indeosebi calitatea acestei proprietati este evidentiata ca dispune de 1 loc de parcare inclus in pretul chiriei si dispune de centrala proprie.
Apartamentul cu o suprafata generoasa de 128 mp se inchiriaza complet utilat si mobilat cu mobila italiana din lemn masiv
Pretul de 1530 euro include o reducere de 10% pentru plata trimestriala.
În ceea ce priveste infrastructura, zona dispune de toate utilitatile tehnico-edilitare (apa, canalizare, gaz metan, electricitate etc.). Transportul în comun este asigurat de autobuze care, împreuna, leaga eficient zona de toate capitala.
Zona dispune de scoli, restaurante, gradinite, magazine, farmacii si spatii verzi fiind si foarte aproape de Parcul Herastrau.
In cazul in care aceasta proprietate v-a atras atentia si doriti sa faceti o vizionare ne contactati si va stam la dispozitie.
Atribute
An constructie 2005
Suprafata construita 143 mp
Suprafata utila 128 mp
Regim Inaltime 2 / 3
Etaj 2
Nr. camere 3 camere
Nr. bai 2
Nr. balcoane 0 balcoane
Confort 1
Compartimentare Decomandat
Tip constructie In bloc
Status constructie Finalizat
Disponibila incepand cu 2023-02-22
Judet Bucuresti
Oras/ Sector Sector 1
Zona Herastrau
Gps lat 44.486686
Gps lng 26.085717
Nr. terase 1
Facilitati
Curent electric
Internet Wireless
Detector de gaze
Acoperis mansardat
Internet prin cablu
Interfon
Supraveghere video
Cablu TV
Internet prin fibra optica
Sistem de alarma
Supraveghere 24/7
Geamuri termopan
Repartitoare
Parchet
Apometre
Gresie
Loc parcare subteran
Faianta
Gaz
Incalzire proprie
WC serviciu
Mobilat
Aer conditionat
Bucatarie mobilata
Bloc reabiliat termic
Apartament 3 camere de inchiriat Herastrau
Proprietate inchiriata
Ai o proprietate similara? Vinde-o cu noi.
  Vinde apartament  
Proprietati similare
Bucuresti, Floreasca, Barbu Vacarescu
3 camere cu loc parcare subteran inclus
1.400 EUR/luna
Detalii 
  
  
  
  
  
  
  
  
  
  
  
  
  
  
  
   
   
   
   
   
  
  
   
   
   
   
   
  
  
   
   
   
   
   
  
   
   
   
   
   
  
  
   
   
   
   
   
  
  
   
   
   
   
   
  
  
   
   
   
   
   
  
  
   
   
   
   
  