Cotroceni 2 camere 54 mp 5 2024

SVN Residentialist va propune spre inchiriere un apartament modern cu 2 camere, situat in prestigiosul ansamblu One Cotroceni Park, o locatie care combina confortul cu accesibilitatea, fiind ideal pentru un stil de viata urban.

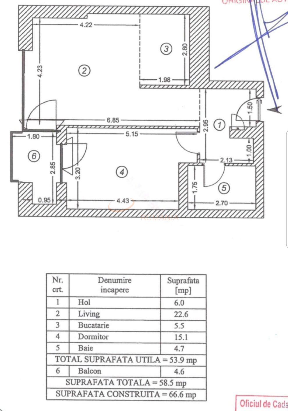
Acest apartament beneficiaza de o suprafata utila de 54 mp, perfect compartimentata pentru a oferi un spatiu generos si functional. Balconul de 5 mp, amplasat la etajul 5 din 11 al imobilului, ofera o priveliste incantatoare si este ideal pentru momente de relaxare in aer liber. Totul in apartament este nou, de la finisaje la mobilier, acesta aflandu-se la prima inchiriere, oferind astfel locatarilor un ambient curat si modern.

In apropierea ansamblului, locatarii se vor bucura de o gama variata de facilitati, inclusiv sali de fitness bine echipate, supermarketuri, unitati de invatamant de top pentru toate varstele, centre comerciale si clinici medicale. De asemenea, metroul se afla la doar 5 minute distanta, facilitand accesul rapid catre alte zone ale orasului.

Detalii suplimentare:
- Loc de parcare inclus in pret, oferind confort suplimentar si eliminand problemele legate de parcarea in zona.
- Nu se accepta animale de companie

Pentru mai multe informatii si pentru a programa o vizionare, va invitam sa contactati SVN Residentialist. Aceasta proprietate reprezinta o oportunitate excelenta pentru cei care cauta un apartament confortabil, modern si bine situat intr-o zona vibranta a capitalei. Nu ratati ocazia de a va stabili intr-un spatiu care intruneste toate cerintele unui stil de viata activ si modern!

An constructie 2024

Suprafata construita 58.5 mp

Suprafata utila 54 mp

Regim Inaltime 5 / 11

Etaj 5

Nr. camere 2 camere

Nr. bai 1

Nr. balcoane 1 balcon

Confort 1

Compartimentare Decomandat

Tip constructie In bloc

Status constructie Finalizat

Disponibila incepand cu 2025-07-02

Judet Bucuresti

Oras/ Sector Sector 5

Zona Cotroceni

Gps lat 44.426929

Gps lng 26.063106

Supraveghere video

Supraveghere 24/7

Cablu TV

Curent electric

Internet Wireless

Interfon

Geamuri termopan

Repartitoare

Parchet

Apometre

Gresie

Loc parcare subteran

Faianta

Gaz

Incalzire prin pardoseala

Mobilat

Aer conditionat

Bucatarie mobilata

Lift

Pompe de caldură

Apartament 2 camere ONE Cotroceni

Proprietate inchiriata

Ai o proprietate similara? Vinde-o cu noi.
Vinde apartament

Cod: REA1024417

Proprietati similare

Bucuresti, Cotroceni

Apartament, 2 camere

55 mp 6 2024

900 EUR/luna

Detalii

Bucuresti, Cotroceni

Apartament, 2 camere

55 mp 6 2024

900 EUR/luna

Detalii

Bucuresti, Cotroceni

Apartament, 2 camere

51 mp 3 2021

800 EUR/luna

Detalii

Bucuresti, Ultracentral, Calea Victoriei

Apartament, 2 camere

58 mp 4 1932

850 EUR/luna

Detalii

Bucuresti, Ultracentral, Magheru

Apartament, 2 camere

56 mp 6 1977

800 EUR/luna

Detalii

Bucuresti, Ultracentral, Piata Romana

Apartament, 2 camere

48 mp 9 1968

800 EUR/luna

Detalii

Bucuresti, Floreasca, Barbu Vacarescu

2 camere cu loc parcare subteran inclus

57 mp 6 2020

920 EUR/luna

Detalii

Bucuresti, Floreasca, Barbu Vacarescu

Apartament, 2 camere

59 mp 7 2022

800 EUR/luna

Detalii
Apartamente 2 camere inchiriate in Cotroceni, Bucuresti Apartamente 2 camere de inchiriere in Cotroceni, Bucuresti

Afla primul de cele mai bune oferte
inainte sa ajunga pe piata

Aboneaza-te la newsletter

Aboneaza-te la notificari