Cotroceni 2 camere 51.6 mp 6 2024

SVN Romania va propune spre inchiriere un apartament premium cu 2 camere, situat in ansamblul One Cotroceni Park, in apropiere de Academia Militara / Cotroceni / Panduri.

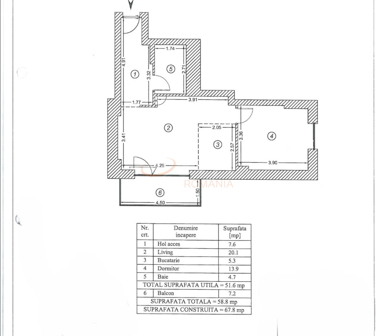
Apartamentul este compartimentat modern si include: living cu bucatarie open space, dormitor matrimonial, baie complet echipata si balcon. Se afla intr-un bloc nou, finalizat in 2024, cu finisaje si dotari premium.

Se inchiriaza complet mobilat si utilat – totul nou, la prima inchiriere. Dispune de incalzire in pardoseala, centrala de bloc, 2 aparate de aer conditionat si loc de parcare subteran (nivel -1). Inchirierea se face direct de la proprietar.

Dotari si mobilier:
Apartamentul este complet mobilat si echipat cu plita cu inductie, masina de spalat vase, frigider, masina de spalat rufe, aspirator, pat dublu cu saltea noua, noptiere, comoda, canapea extensibila, comoda TV, dulapuri in living, dormitor si hol. Beneficiaza de televizor, router wireless si abonament internet RDS 500 Mbps. Sunt incluse si obiecte sanitare moderne, precum si elemente decorative care contribuie la un ambient placut.

Disponibil imediat.

Conditii de inchiriere:
Perioada minima de inchiriere este de 1 an. Avansul este reprezentat de luna curenta, iar garantia este echivalenta cu 2 luni de chirie. Utilitatile se platesc separat de catre chirias.

Pentru mai multe detalii sau programarea unei vizionari, va rugam sa ne contactati.

An constructie 2024

Suprafata construita 67.8 mp

Suprafata utila 51.6 mp

Suprafata terasa 7.2 mp

Regim Inaltime 6 / 11

Etaj 6

Nr. camere 2 camere

Nr. bai 1

Nr. balcoane 1 balcon

Confort 1

Compartimentare Decomandat

Tip constructie In bloc

Status constructie Finalizat

Disponibila incepand cu 2025-07-28

Judet Bucuresti

Oras/ Sector Sector 5

Zona Cotroceni

Gps lat 44.427674

Gps lng 26.062530

Complex rezidential One Cotroceni Park

Cablu TV

Curent electric

Interfon

Supraveghere 24/7

Geamuri termopan

Parchet

Gresie

Loc parcare subteran

Faianta

Incalzire prin pardoseala

Mobilat

Aer conditionat

Bucatarie mobilata

Lift

Apartament 2 camere One Cotroceni I loc de parcare inclus

Proprietate inchiriata

Ai o proprietate similara? Vinde-o cu noi.
Vinde apartament

Cod: REA1024795

Proprietati similare

Bucuresti, Cotroceni

Apartament, 2 camere

55 mp 6 2024

880 EUR/luna

Detalii

Bucuresti, Cotroceni

2 camere cu loc parcare subteran inclus

50 mp 8 2023

850 EUR/luna

Detalii

Bucuresti, Cotroceni

2 camere cu loc parcare subteran inclus

50 mp 6 2023

800 EUR/luna

Detalii

Bucuresti, Cotroceni

2 camere cu loc parcare subteran inclus

54 mp 8 2023

900 EUR/luna

Detalii

Bucuresti, Cotroceni

2 camere cu loc parcare subteran inclus

50 mp 7 2023

850 EUR/luna

Detalii

Bucuresti, Cotroceni

2 camere cu loc parcare subteran inclus

50 mp 5 2023

800 EUR/luna

Detalii

Bucuresti, Cotroceni

2 camere cu loc parcare subteran inclus

50 mp 8 2023

850 EUR/luna

Detalii

Bucuresti, Cotroceni

Apartament, 2 camere

60 mp 8 2025

790 EUR/luna

Detalii
Apartamente 2 camere inchiriate in Cotroceni, Bucuresti Apartamente 2 camere de inchiriere in Cotroceni, Bucuresti

Afla primul de cele mai bune oferte
inainte sa ajunga pe piata

Aboneaza-te la newsletter

Aboneaza-te la notificari