Cotroceni 3 camere 70 mp 1 1968

SVN Romania va propune spre inchiriere apartament cu 3 camere, amplasat pe str. Dr Joseph Lister in cartierul Cotroceni.

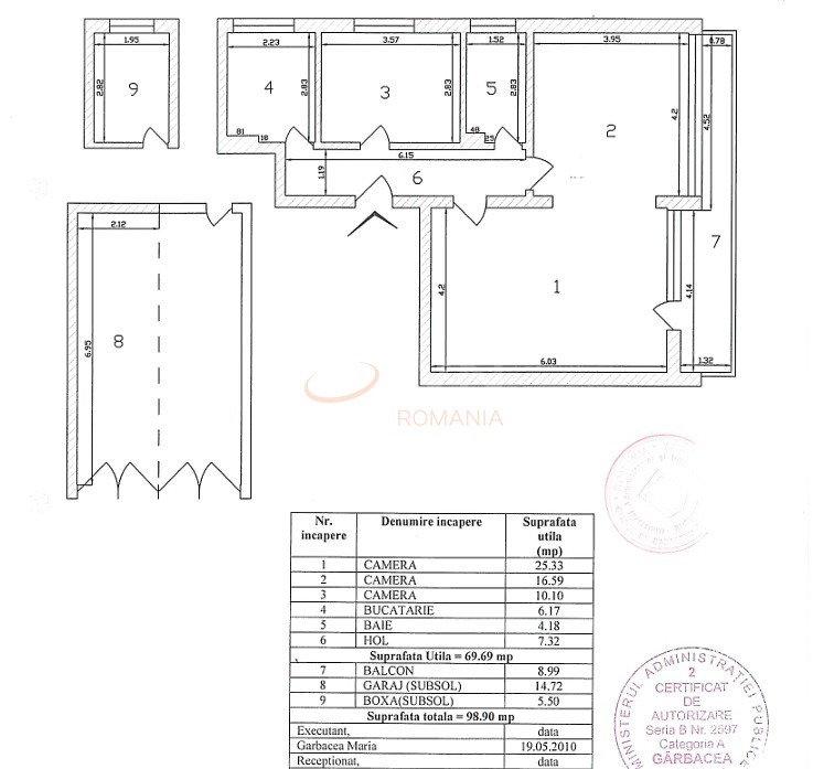
Locuinta dispune de centrala termica proprie, boxa si loc de parcare in garaj subteran,

Se desfasoara pe o suprafata utila de 70mp si terasa de 9mp.

Apartamentul este dotat cu doua unitati de aer conditionat si buctaria mobilata si utilata.

Pentru mai multe detalii de puteti contacta telefonic!

An constructie 1968

Suprafata construita 80 mp

Suprafata utila 70 mp

Suprafata terasa 9 mp

Regim Inaltime 1 / 2

Etaj 1

Nr. camere 3 camere

Nr. bai 1

Nr. balcoane 0 balcoane

Confort 1

Compartimentare Semidecomandat

Tip constructie In bloc

Status constructie Finalizat

Disponibila incepand cu 2025-11-26

Judet Bucuresti

Oras/ Sector Sector 5

Zona Cotroceni

Gps lat 44.428904

Gps lng 26.074315

Nr. terase 1

Detector de gaze

Sistem de alarma

Cablu TV

Curent electric

Internet prin fibra optica

Internet Wireless

Interfon

Geamuri termopan

Parchet

Apometre

Boxa

Gresie

Loc parcare subteran

Faianta

Gaz

Calorifere

Incalzire proprie

Aer conditionat

Bucatarie mobilata

Broker Imobiliar

Ionut Ilie , Consultant imobiliar Vezi toate proprietatile

0317100200

Apartament 3 camere - Cotroceni - Arenele BNR

Pret inchiriere
800 € /luna

Telefon Consultant imobiliar
0317100200

Cod: REA1026611

Proprietati similare

Bucuresti, Unirii, Piata Unirii (s3)

Apartament, 3 camere

100 mp 8 1994

800 EUR/luna

Detalii

Bucuresti, Unirii, Piata Unirii (s3)

Apartament, 3 camere

80 mp 4 1990

850 EUR/luna

Detalii

Bucuresti, Ultracentral, Piata Universitatii

Apartament, 3 camere

86.3 mp 2 1935

750 EUR/luna

Detalii

Bucuresti, Militari, Grozavesti

Apartament, 3 camere

65.94 mp 11 2018

800 EUR/luna

Detalii

Bucuresti, Ultracentral, Piata Victoriei

Apartament, 3 camere

80 mp 6 1954

780 EUR/luna

Detalii
Exclusiv Discount

Bucuresti, Ultracentral, Universitate (s1)

Apartament, 3 camere

80 mp P 1938

850 EUR/luna

Detalii

Bucuresti, 1 Mai

Apartament, 3 camere

104 mp 12 1980

790 EUR/luna

Detalii

Bucuresti, Vitan

Apartament, 3 camere

80 mp 6 1990

799 EUR/luna

Detalii
Apartamente 3 camere inchiriate in Cotroceni, Bucuresti Apartamente 3 camere de inchiriere in Cotroceni, Bucuresti

Afla primul de cele mai bune oferte
inainte sa ajunga pe piata

Aboneaza-te la newsletter

Aboneaza-te la notificari