Apartament, 6 camere, Bucuresti / Cotroceni
Imobilul dispune de o scara generoasa si de un lift cu acces atat din interiorul cladirii, pentru fiecare nivel, cat si din exteriorul cladirii la parter, pentru persoanele cu dizabilitati.
Incalzirea se face cu centrale termice in condensatie si radiatoare, iar conditionarea cu unitati individuale (unitatile exterioare neafectand aspectul cladirii).
Inaltimea fiecarei incaperi se situeaza intre 2.7, 3 m inclusiv cea a mansardei, iar inaltimea parterului pe zona de spatiu comercial este de cca. 4 m.
Contorizarea gazului (5 contoare), a energiei electrice (1 contor tensiune tensiune 380V, putere 40 kW si 5 contoare 220V, putere 9kW fiecare) apa (1 contor) si canal sunt independente, contractele putand fi preluate de catre chirias.
Posibilitati de parcare: in parcarea publica Piata Operei.
Statii metrou si mijloace de transport in comun cca. 30 m.
Nu avem Certificat Energetic insa la momentul tranzactiei acesta va disponibil.
Atribute
An constructie 1938
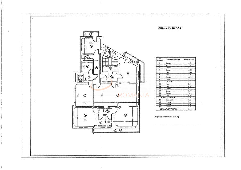
Suprafata construita 195 mp
Suprafata utila 164.92 mp
Regim Inaltime 2 / 3
Etaj 2
Nr. camere 6 camere
Nr. bai 2
Nr. balcoane 0 balcoane
Confort 1
Tip constructie In vila
Status constructie Finalizat
Disponibila incepand cu 2021-02-09
Judet Bucuresti
Oras/ Sector Sector 5
Zona Cotroceni
Gps lat 44.433780
Gps lng 26.078196
Facilitati
Supraveghere video
Geamuri termopan
Gresie
Telefon
Faianta
Gaz
Incalzire proprie
WC serviciu
Aer conditionat
Lift
Spatiu birouri Opera Cotroceni
Proprietate inchiriata
Ai o proprietate similara? Vinde-o cu noi.
  Vinde apartament  
 
  
  
  
  
  
  
  
  
  
  
  
   
   
   
   
  