1 Mai 3 camere 81.69 mp 1 2021

SVN Romania va propune spre vanzare un apartament cu 3 camere situat in prestigiosul complex Luxuria Residence, in zona Domenii - Expozitiei, la doar cateva minute de mers pe jos de statia de metrou 1 Mai.

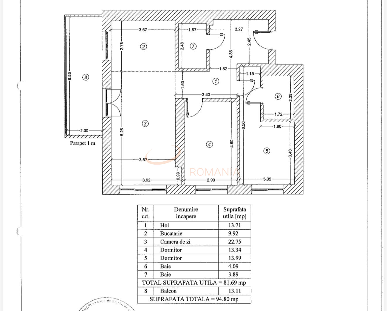
Apartamentul este situat la etajul 1 din 9, intr-un bloc construiin 2021, decomandat, cu o suprafata utila de 81.69 mp si un balcon de 13.11 mp.

Locuinta se vinde complet mobilata si utilata, beneficiind de spatii de depozitare generoase.

Aceasta fiind compusa din living cu bucatarie open space, 2 dormitoare, 2 baie si un balcon generos.

Unul dintre atuurile majore este terasa de 13 mp, cu vedere directa catre parcul interior al complexului, un cadru perfect pentru relaxare.

Optional, se pot achizitiona 2 locuri de parcare la subteran.

Luxuria Residence este un ansamblu premium situat intre Domenii si Expozitiei, aproape de metroul 1 Mai si de principalele puncte de interes din nordul Capitalei.

Complexul ofera securitate si receptie 24/7, un parc privat de 2.500 mp integrat intr-o suprafata totala de aproape 10.000 mp de spatii verzi, lounge pentru rezidenti de 200 mp si o sala de fitness moderna.

Rezidentii beneficiaza de alei de relaxare, locuri de joaca, parcare subterana si acces rapid la Parcul Herastrau, zona de birouri Expozitiei, Piata Presei si cartierul Domenii.

Proprietatea reprezinta o oportunitate excelenta atat pentru rezidenta personala, cat si ca investitie intr-una dintre cele mai cautate zone ale Sectorului 1.

Pentru mai multe informatii si pentru programarea vizionarilor, contactul meu va sta la dispozitie.

An constructie 2021

Suprafata construita 109.02 mp

Suprafata utila 81.69 mp

Suprafata terasa 13.11 mp

Regim Inaltime 1 / 9

Etaj 1

Nr. camere 3 camere

Nr. bai 2

Nr. balcoane 1 balcon

Confort 1

Compartimentare Decomandat

Tip constructie In bloc

Status constructie Finalizat

Disponibila incepand cu 2025-12-23

Judet Bucuresti

Oras/ Sector Sector 1

Zona 1 Mai

Gps lat 44.473853

Gps lng 26.053937

Interfon

Internet Wireless

Internet prin fibra optica

Curent electric

Cablu TV

Detector de gaze

Supraveghere 24/7

Supraveghere video

Geamuri termopan

Parchet

Apometre

Gresie

Loc parcare subteran

Faianta

Gaz

Incalzire proprie

Incalzire prin pardoseala

Mobilat

Aer conditionat

Bucatarie mobilata

Bloc reabiliat termic

Lift

Valoare proprietate (€)

Perioada (ani)

Procent avans (50.250 €)


Suma creditata 284.750

Dobanda 4.9%

Rata lunara 7.040 lei

Broker Imobiliar

Cristian Vasile , Consultant imobiliar Vezi toate proprietatile

0317100200

Apartament 3 camere I Luxuria I Parcare I Metrou I De vanzare

Pret vanzare
335.000 €

Telefon Consultant imobiliar
0317100200

Cod: REA1025119

Proprietati similare

Bucuresti, 1 Mai, Domenii

3 camere cu loc parcare subteran inclus

75 mp 7 2019

365.000 EUR

Detalii

Bucuresti, 1 Mai, Domenii

Apartament, 3 camere

75 mp P 2023

303.850 EUR

Detalii

Bucuresti, Bucurestii Noi

3 camere cu loc parcare subteran inclus

105 mp 2 2024

349.900 EUR

Detalii
Exclusiv Discount

Bucuresti, Kiseleff, Arcul De Triumf

Apartament, 3 camere

83 mp 6 2008

314.990 EUR

Detalii

Bucuresti, Herastrau

Apartament, 3 camere

78 mp 3 2012

350.000 EUR

Detalii

Bucuresti, Herastrau

Apartament, 3 camere

85.68 mp 3 2019

350.000 EUR

Detalii

Bucuresti, Baneasa

Apartament, 3 camere

100 mp P 1991

348.000 EUR

Detalii

Bucuresti, Herastrau

Apartament, 3 camere

95 mp 5 2008

360.000 EUR

Detalii
Apartamente 3 camere vandute in 1 Mai, Bucuresti Apartamente 3 camere de vanzare in 1 Mai, Bucuresti

Afla primul de cele mai bune oferte
inainte sa ajunga pe piata

Aboneaza-te la newsletter

Aboneaza-te la notificari