Apartament, 3 camere, Bucuresti / 1 Mai / Domenii
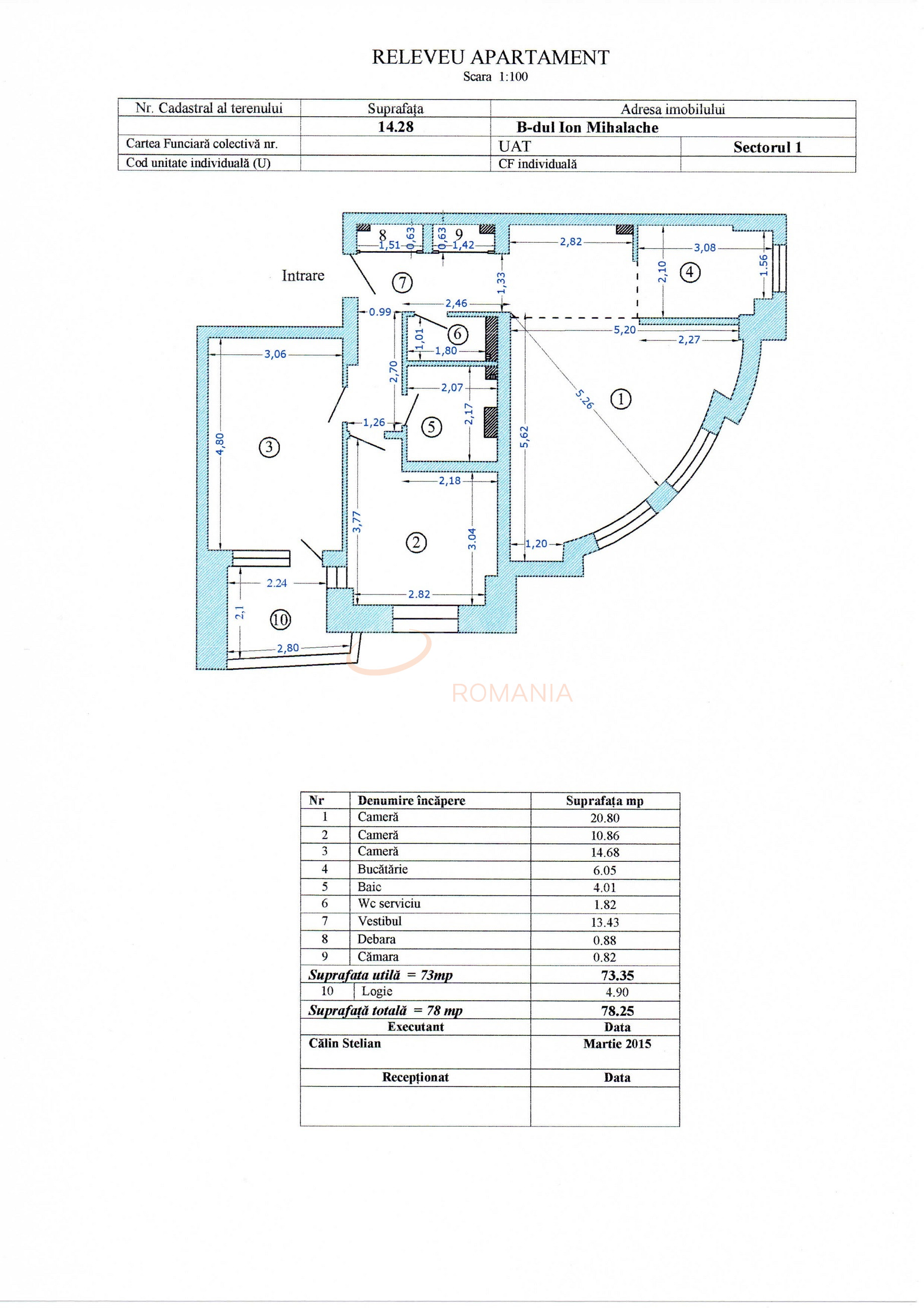
Apartamentul este situat la etajul 6/8, este decomandat si are o suprafata de 78 mp, din care 73 mp utili si 5 mp de balcon.
Proprietatea este dotata cu 2 bai, un balcon de 5 mp si este finisata cu gresie, faianta, parchet, geamuri termopan si calorifere de otel/aluminiu.
In imediata apropiere se gasesc scoli, gradinite, licee, piata, STB, magazine, farmacii, supermarket, institutii bancare, restaurante.
Nu detinem informatii despre clasa energetica a imobilului.
Atribute
An constructie 2007
Suprafata construita 100 mp
Suprafata utila 73 mp
Suprafata terasa 5 mp
Regim Inaltime 6 / 8
Etaj 6
Nr. camere 3 camere
Nr. bai 2
Nr. balcoane 1 balcon
Confort 1
Compartimentare Decomandat
Tip constructie In bloc
Status constructie Finalizat
Disponibila incepand cu 2025-03-17
Judet Bucuresti
Oras/ Sector Sector 1
Zona Domenii
Gps lat 44.465327
Gps lng 26.067224
Facilitati
Internet prin cablu
Interfon
Supraveghere video
Cablu TV
Internet prin fibra optica
Curent electric
Internet Wireless
Sistem de alarma
Geamuri termopan
Parchet
Apometre
Gresie
Telefon
Faianta
Gaz
Loc parcare exterior
Incalzire proprie
WC serviciu
Mobilat
Aer conditionat
Bucatarie mobilata
Lift
Domenii - apartament cu 3 camere
Proprietate vanduta
Ai o proprietate similara? Vinde-o cu noi.
  Vinde apartament  
 
  
  
  
  
  
  
  
  
  
  
  
  
  
   
   
   
   
   
  
  
   
   
   
   
   
  
  
   
   
   
   
   
  
  
   
   
   
   
   
  
  
   
   
   
   
   
  
  
   
   
   
   
   
  
  
   
   
   
   
   
  
   
   
   
   
  