Crangasi 3 camere 69 mp 1 2024

SVN Romania va propune spre vanzare apartament modern compus din 3 camere, situat in complexul rezidential Trio Bridge View, in zona Crangasi. Proprietatea se afla intr-un bloc nou, finalizat in decembrie 2023, si se vinde complet mobilat, exact ca in poze. Apartamentul este nou, nu a fost locuit niciodata si este disponibil imediat pentru mutare.Loc de parcare subteran inclus in pret.

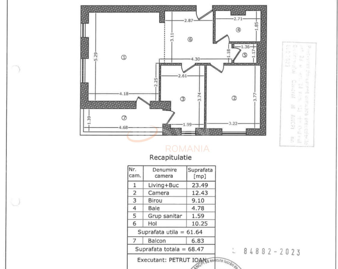
Detalii apartament:
•Suprafata utila generoasa de 69 mp, compartimentare eficienta
•Living spatios si luminos, bucatarie inchisa complet mobilata si utilata
•Doua dormitoare, baie moderna si balcon
•Finisaje premium, mobilier si electrocasnice noi, in garantie

Avantaje:
•Pozitie excelenta: la doar 3 minute de mers pe jos pana la statia de metrou Crangasi
•Acces facil la mijloace de transport in comun, scoli, parcuri si centre comerciale
•Loc de parcare inclus, situat la subsolul cladirii

Imobilul este ideal atat pentru locuit, cat si pentru investitie, datorita zonei in plina dezvoltare si a accesului rapid catre toate punctele de interes din Capitala.

An constructie 2024

Suprafata construita 80 mp

Suprafata utila 69 mp

Suprafata terasa 7 mp

Regim Inaltime 1 / 10

Etaj 1

Nr. camere 3 camere

Nr. bai 1

Nr. balcoane 1 balcon

Confort 1

Compartimentare Semidecomandat

Tip constructie In bloc

Status constructie Finalizat

Disponibila incepand cu 2025-10-28

Judet Bucuresti

Oras/ Sector Sector 6

Zona Crangasi

Gps lat 44.452026

Gps lng 26.048409

Sistem de alarma

Detector de gaze

Supraveghere 24/7

Internet prin fibra optica

Interfon

Geamuri termopan

Parchet

Gresie

Telefon

Loc parcare subteran

Faianta

Gaz

Incalzire proprie

Calorifere

Incalzire prin pardoseala

WC serviciu

Mobilat

Aer conditionat

Bucatarie mobilata

Bloc reabiliat termic

Lift

Valoare proprietate (€)

Perioada (ani)

Procent avans (37.500 €)


Suma creditata 212.500

Dobanda 4.9%

Rata lunara 5.254 lei

Broker Imobiliar

Anca Costache , Consultant imobiliar Vezi toate proprietatile

0317100200

Apartament de vanzare 3 camere Trio Bridge View Crangasi

Pret vanzare
250.000 €

Telefon Consultant imobiliar
0317100200

Cod: REA1024448

Proprietati similare

Bucuresti, Militari, Politehnica

Apartament, 3 camere

80.48 mp 4 2028

235.300 EUR

Detalii

Bucuresti, 1 Mai, Domenii

Apartament, 3 camere

76.7 mp P 2023

257.500 EUR

Detalii

Bucuresti, Militari, Lujerului

Apartament, 3 camere

74.9 mp 11 2024

250.000 EUR

Detalii

Bucuresti, Ultracentral, Victoriei

Apartament, 3 camere

72 mp P 1911

249.000 EUR

Detalii

Bucuresti, Kiseleff, Piata Presei Libere

Apartament, 3 camere

54 mp 3 2020

230.000 EUR

Detalii

Bucuresti, Cotroceni

Apartament, 3 camere

73 mp 10 2024

272.000 EUR

Detalii

Bucuresti, Cotroceni

Apartament, 3 camere

79 mp 11 2024

265.000 EUR

Detalii

Bucuresti, Herastrau

3 camere cu loc parcare exterior inclus

63 mp 2 2022

244.000 EUR

Detalii
Apartamente 3 camere vandute in Crangasi, Bucuresti Apartamente 3 camere de vanzare in Crangasi, Bucuresti

Afla primul de cele mai bune oferte
inainte sa ajunga pe piata

Aboneaza-te la newsletter

Aboneaza-te la notificari