Dacia 3 camere 68.6 mp 3 2023

SVN Romania va prezinta spre vanzare un apartament cu 3 camere, intr-un bloc boutique situat intr-o zona centrala care iti ofera acces rapid catre toate arterele precum Strada Mihai Eminescu, Bulevardul Dacia si Universitate.

Avantajul amplasarii centrale ii ofera acces rapid si la diverse facilitati, cum ar fi magazine, restaurante, gradinite, scoli si mijloace de transport in comun.

Finisaje:

- Fatada ventilata placata cu Vata Bazaltica+AlucoBond si Fibrociment
- Centrale termice: Saunier Duval
- Tamplarie pvc Salamander tripan Blue Edition
- Ceramica premium parti comune
- Usi Italia Pinum
- Parchet triplu stratificat
- Incalzire in pardoseala
- Obiecte sanitare Rocca cu baterii Hans Grohe
- Prize si intrerupatoare Bticino
- Video-interfon

Locul de parcare se poate achizitiona separat la pretul de 20.000 Euro+TVA 19% subteran si 10.000 Euro+TVA 19 % suprateran.

Cerificatul energetic va fi disponibil in momentul vanzarii.

Pentru mai multe informatii, va stam cu placere la dispozitie!

Echipa SVN Romania este aici pentru Dumneavoastra, pentru a va facilita achizitia casei de vis!

An constructie 2023

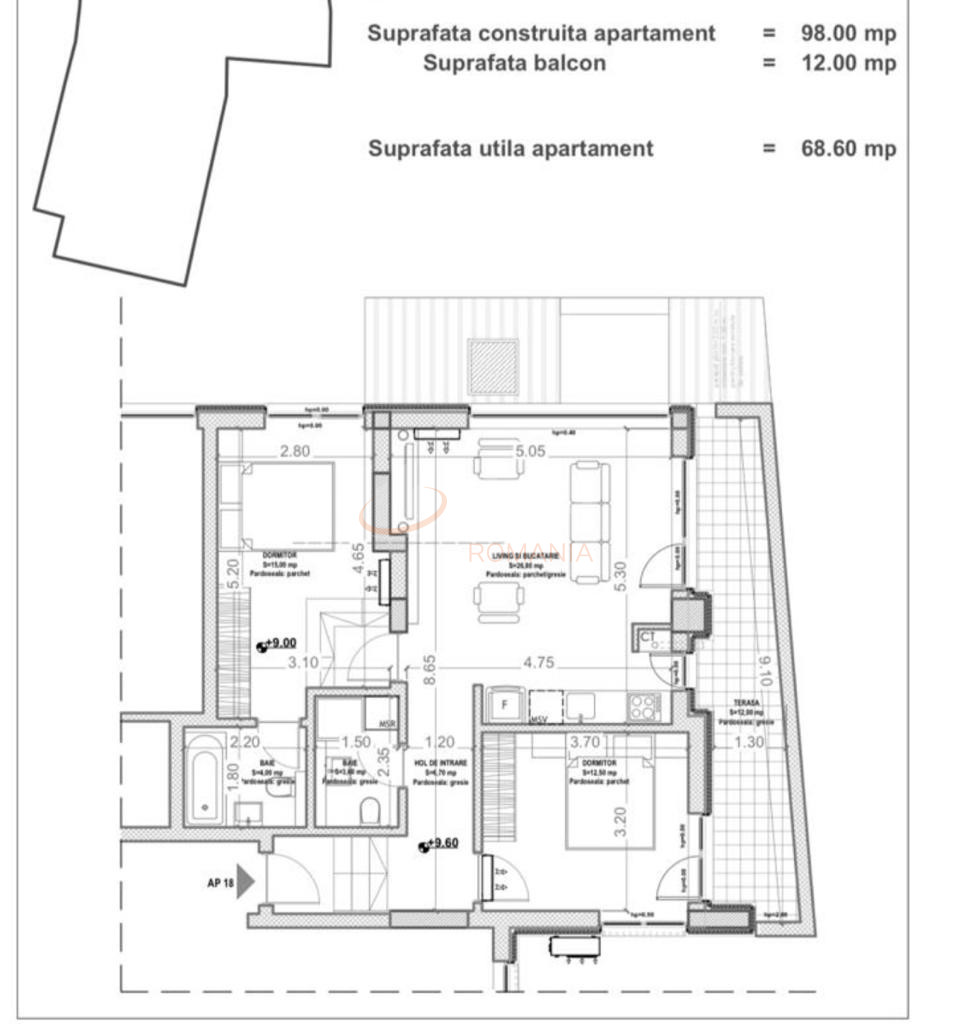
Suprafata construita 98 mp

Suprafata utila 68.6 mp

Suprafata terasa 12 mp

Regim Inaltime 3 / 3

Etaj 3

Nr. camere 3 camere

Nr. bai 2

Nr. balcoane 0 balcoane

Confort 1

Compartimentare Semidecomandat

Tip constructie In bloc

Status constructie Finalizat

Disponibila incepand cu 2023-08-03

Judet Bucuresti

Oras/ Sector Sector 2

Zona Dacia

Gps lat 44.446725

Gps lng 26.120024

Nr. terase 1

Cablu TV

Internet Wireless

Supraveghere video

Curent electric

Interfon

Internet prin cablu

Geamuri termopan

Repartitoare

Parchet

Apometre

Gresie

Faianta

Gaz

Incalzire proprie

Incalzire prin pardoseala

WC serviciu

Lift

Apartament 3 Camere Dacia Bloc Boutique

Proprietate vanduta

Ai o proprietate similara? Vinde-o cu noi.
Vinde apartament

Cod: REA1015969

Proprietati similare

Bucuresti, Stefan Cel Mare

Apartament, 3 camere

93.16 mp 3 2010

209.000 EUR

Detalii

Bucuresti, Ferdinand

Apartament, 3 camere

73.39 mp 2 2026

210.000 EUR

Detalii

Bucuresti, Ferdinand

Apartament, 3 camere

82.8 mp 4 2026

237.000 EUR

Detalii

Bucuresti, Colentina, Bucur Obor

Apartament, 3 camere

81.5 mp 3 2026

214.400 EUR

Detalii

Bucuresti, Colentina, Bucur Obor

Apartament, 3 camere

89 mp 10 2026

225.400 EUR

Detalii

Bucuresti, Dacia, Gradina Icoanei

Apartament, 3 camere

80 mp 3 1935

250.000 EUR

Detalii

Bucuresti, Ultracentral, Universitate (s1)

Apartament, 3 camere

76 mp 1 1950

220.000 EUR

Detalii

Bucuresti, Floreasca, Barbu Vacarescu

Apartament, 3 camere

80 mp 4 1990

249.000 EUR

Detalii
Apartamente 3 camere vandute in Dacia, Bucuresti Apartamente 3 camere de vanzare in Dacia, Bucuresti

Afla primul de cele mai bune oferte
inainte sa ajunga pe piata

Aboneaza-te la newsletter

Aboneaza-te la notificari