Mihai Bravu (s2) 3 camere 56.4 mp 1 1964

SVN Residentialist va propune spre vanzare un apartament cu 3 camere semidecomandat, 62 mp utili, situat la etajul 1/10, intr-un bloc monolit din beton armat (an 1964), complet anvelopat si fara risc seismic.

Luminos si calduros, cu orientare sud-vest, intretinut foarte bine, apartamentul este optimizat intrucat prezinta izolatie termica si fonica foarte buna, avand clasa energetica B, motiv pentru care cheltuielile sunt reduse la intretinere

Ca si locatie, imobilul este aplasat pe soseaua Mihai Bravu – intre zona Predoleanu si Liceul Iulia Hasdeu, aproape de Piata Obor.
Ofera cces rapid catre centru, metrou M1/M3, tramvaie 1,10, autobuze 79, 311, troleibuz 97.
Astfel, zona este ideala atat pentru locuit, cat si pentru investitie (inchiriere 500–700 euro/luna).

Acesta prezinta o serie de dotari, printre care:
-Usa metalica securizata
-Bucatarie mobilata (aragaz, chiuveta inox, gresie si faianta Spania)
-Living mobilat (canapea, fotolii, masuta, TV)
-Dormitoare cu parchet in stare excelenta
-Baie moderna, masina de spalat noua
-Balcon inchis cu PVC, 2 debarale
-Bloc cu lift modernizat, supraveghere video, administrare corecta

Apartamentul se vinde complet mobilat si utilat (inclus in pret).
Acte la zi, apartament liber, disponibil imediat.

Pentru mai multe detalii si propgramarea de vizionari, nu ezitati sa ma contactati

An constructie 1964

Suprafata construita 62 mp

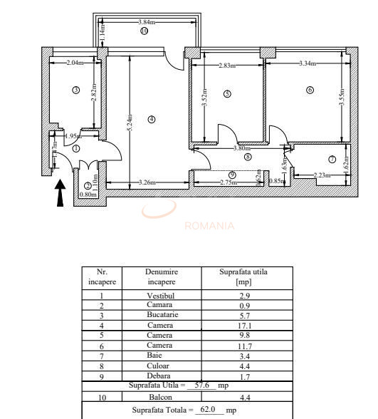
Suprafata utila 56.4 mp

Suprafata terasa 4.4 mp

Regim Inaltime 1 / 10

Etaj 1

Nr. camere 3 camere

Nr. bai 1

Nr. balcoane 1 balcon

Confort 1

Compartimentare Semidecomandat

Tip constructie In bloc

Status constructie Finalizat

Disponibila incepand cu 2025-11-07

Judet Bucuresti

Oras/ Sector Sector 2

Zona Mihai Bravu (s2)

Gps lat 44.445528

Gps lng 26.126855

Clasa energetica 2

Detector de gaze

Cablu TV

Curent electric

Internet Wireless

Interfon

Geamuri termopan

Repartitoare

Balcon inchis

Parchet

Apometre

Gresie

Telefon

Faianta

Gaz

Calorifere

Mobilat

Bucatarie mobilata

Lift

Supraveghere 24/7

Bloc reabiliat termic

Valoare proprietate (€)

Perioada (ani)

Procent avans (15.750 €)


Suma creditata 89.250

Dobanda 4.9%

Rata lunara 2.207 lei

Broker Imobiliar

Dan Ghita , Consultant imobiliar Vezi toate proprietatile

0317100200

Apartament 3 camere l Mihai Bravu l Mobilat Utilat

Pret vanzare
105.000 €

Telefon Consultant imobiliar
0317100200

Cod: REA1024252

Proprietati similare

Bucuresti, Dacia

Apartament, 3 camere

70 mp 2 1960

99.999 EUR

Detalii

Bucuresti, Colentina

Apartament, 3 camere

61 mp 6 1969

105.000 EUR

Detalii

Bucuresti, Tei, Lacul Tei

Apartament, 3 camere

64 mp 5 1976

110.000 EUR

Detalii

Bucuresti, Pantelimon

Apartament, 3 camere

59.68 mp 10 1983

102.500 EUR

Detalii

Bucuresti, Ultracentral, Universitate (s1)

Apartament, 3 camere

50 mp 2 1959

110.000 EUR

Detalii

Bucuresti, Ultracentral, Cismigiu

Apartament, 3 camere

56.63 mp 4 1932

97.000 EUR

Detalii

Bucuresti, Gara De Nord, Grivita

Apartament, 3 camere

70 mp 3 1950

114.000 EUR

Detalii

Bucuresti, Ultracentral, Kogalniceanu

Apartament, 3 camere

75 mp P 1938

114.000 EUR

Detalii
Apartamente 3 camere vandute in Mihai Bravu, Bucuresti Apartamente 3 camere de vanzare in Mihai Bravu, Bucuresti

Afla primul de cele mai bune oferte
inainte sa ajunga pe piata

Aboneaza-te la newsletter

Aboneaza-te la notificari