Polona 3 camere 151 mp 3 2002

Descopera un apartament deosebit, situat într-un imobil tip boutique, cu doar 3 apartamente, construit în 2002, pe o strada linistita, adiacenta Strazii Polona. Beneficiaza de o locatie premium, cu acces rapid catre statia de metrou, mijloace de transport în comun si principalele puncte de interes din centrul Bucurestiului.

Caracteristici principale:
*Suprafata utila: 151 mp + balcon închis (4.81 mp) + terasa deschisa (7.65 mp)
*Suprafata utila totala: 163 mp
*Tip duplex, situat la etajele 3 si 4 (mansarda)
*Vedere libera catre o zona de case

Compartimentare eficienta:
*Etajul 3:*
- Living generos (33.3 mp)
- Dormitor (17.63 mp)
- Dormitor / birou (7.47 mp)
- Bucatarie închisa (14.58 mp) cu acces catre terasa deschisa
- Baie (5.17 mp) cu cabina de dus si aerisire naturala
- Hol spatios (12.25 mp)
- Balcon închis (4.81 mp)
- Terasa deschisa (7.65 mp)

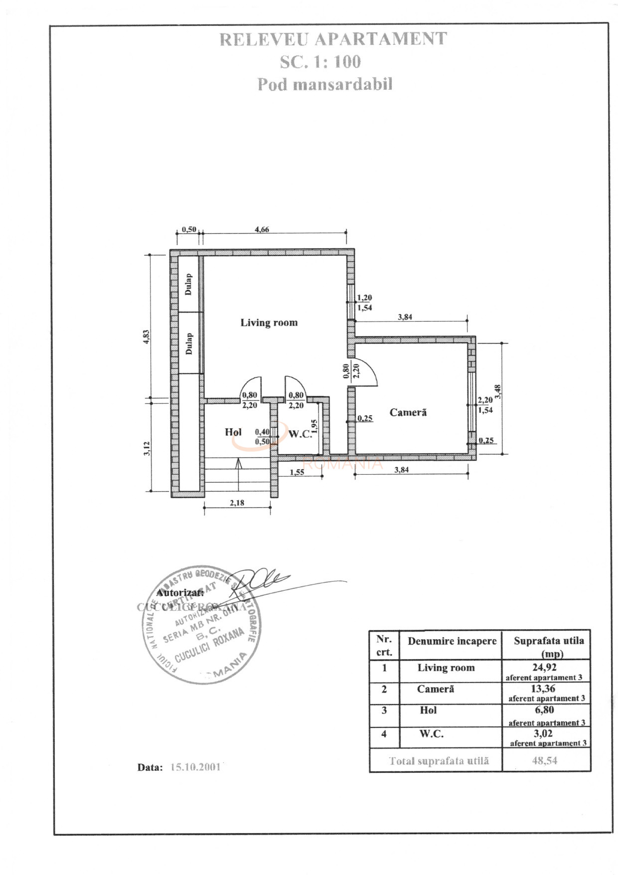
*Etajul 4 (Mansarda):
- Camera de zi / dormitor (24.92 mp)
- Dormitor suplimentar (13.36 mp)
- Baie (3.02 mp) cu cada si geam
- Hol (6.80 mp)
- Spatii de depozitare foarte utile

*Avantaje:
Locatie premium – la doar cativa pasi de Piata Romana, Parcul Ioanid si Piata Universitatii
Aproape de magazine, restaurante, cafenele, supermarketuri si institutii educationale
Compartimentare ideala pentru o familie activa
Bucatarie cu acces la terasa deschisa – perfecta pentru serile petrecute în aer liber

*Fara lift*
*Parcare publica pe strada, în locurile marcate de primarie

Un apartament unic, cu un aer modern si confortabil, ideal pentru cei care îsi doresc un stil de viata urban, dinamic.

An constructie 2002

Suprafata construita 180 mp

Suprafata utila 151 mp

Suprafata terasa 12.46 mp

Regim Inaltime 3 / 4

Etaj 3

Nr. camere 3 camere

Nr. bai 2

Nr. balcoane 1 balcon

Confort 1

Compartimentare Decomandat

Tip constructie In bloc

Status constructie Finalizat

Disponibila incepand cu 2025-05-22

Judet Bucuresti

Oras/ Sector Sector 2

Zona Polona

Gps lat 44.449899

Gps lng 26.102071

Nr. terase 1

Interfon

Geamuri termopan

Parchet

Apometre

Gresie

Faianta

Gaz

Incalzire proprie

Calorifere

Mobilat

Aer conditionat

Bucatarie mobilata

Duplex spatios si luminos I Bloc Boutique - Intrarea Jijia I Polona

Proprietate vanduta

Ai o proprietate similara? Vinde-o cu noi.
Vinde apartament

Cod: REA1022588

Proprietati similare

Bucuresti, Dacia, Polona

Apartament, 3 camere

68.87 mp 3 2000

287.000 EUR

Detalii

Bucuresti, Dacia, Eminescu

Apartament, 3 camere

95.19 mp 1 2025

305.000 EUR

Detalii

Bucuresti, Ultracentral, Calea Victoriei

3 camere cu loc parcare subteran inclus

90 mp 2 1968

300.000 EUR

Detalii

Bucuresti, Dacia, Eminescu

Apartament, 3 camere

99 mp 1 2009

330.000 EUR

Detalii

Bucuresti, Dorobanti, Capitale

Apartament, 3 camere

75 mp 2 1943

295.000 EUR

Detalii

Bucuresti, Ultracentral, Calea Victoriei

Apartament, 3 camere

78 mp 3 1983

340.000 EUR

Detalii

Bucuresti, Sector 1, P-ta Dorobanti

Apartament, 3 camere

75 mp 1 1974

320.000 EUR

Detalii

Bucuresti, Stefan Cel Mare

Apartament, 3 camere

80 mp 4 2025

291.600 EUR

Detalii
Apartamente 3 camere vandute in Dacia, Bucuresti Apartamente 3 camere de vanzare in Dacia, Bucuresti

Afla primul de cele mai bune oferte
inainte sa ajunga pe piata

Aboneaza-te la newsletter

Aboneaza-te la notificari