Nicolae Grigorescu 3 camere 56 mp 2 1977

SVN Residentialist Pipera va ofera spre vanzare un apartament cu 3 camere decomandat, situat pe Bulevardul Camil Ressu, intr-un imobil anvelopat, aflat intr-o zona foarte bine conectata la reteaua de transport public. Proprietatea beneficiaza de o amplasare excelenta, la doar doua minute de mers pe jos de statia de metrou Nicolae Grigorescu, oferind acces rapid si facil catre toate zonele importante ale orasului, precum si catre multiple linii de autobuz si tramvai.

Zona este una matura si apreciata, cu numeroase magazine, scoli, parcuri si alte puncte de interes in imediata apropiere, fiind ideala atat pentru locuit, cat si pentru investitie. Apartamentul este decomandat, are o compartimentare practica si functionala si beneficiaza de ferestre termopan. In rest, proprietatea necesita renovare, ceea ce ofera viitorului proprietar posibilitatea de a-si personaliza locuinta exact dupa propriul gust si nevoi.

Apartamentul este liber, cu actele la zi, pregatit pentru o tranzactie rapida si fara complicatii. Va invitam cu drag sa programati o vizionare si sa descoperiti personal aceasta proprietate exceptionala! Pentru orice informatii suplimentare, nu ezitati sa ne contactati.

An constructie 1977

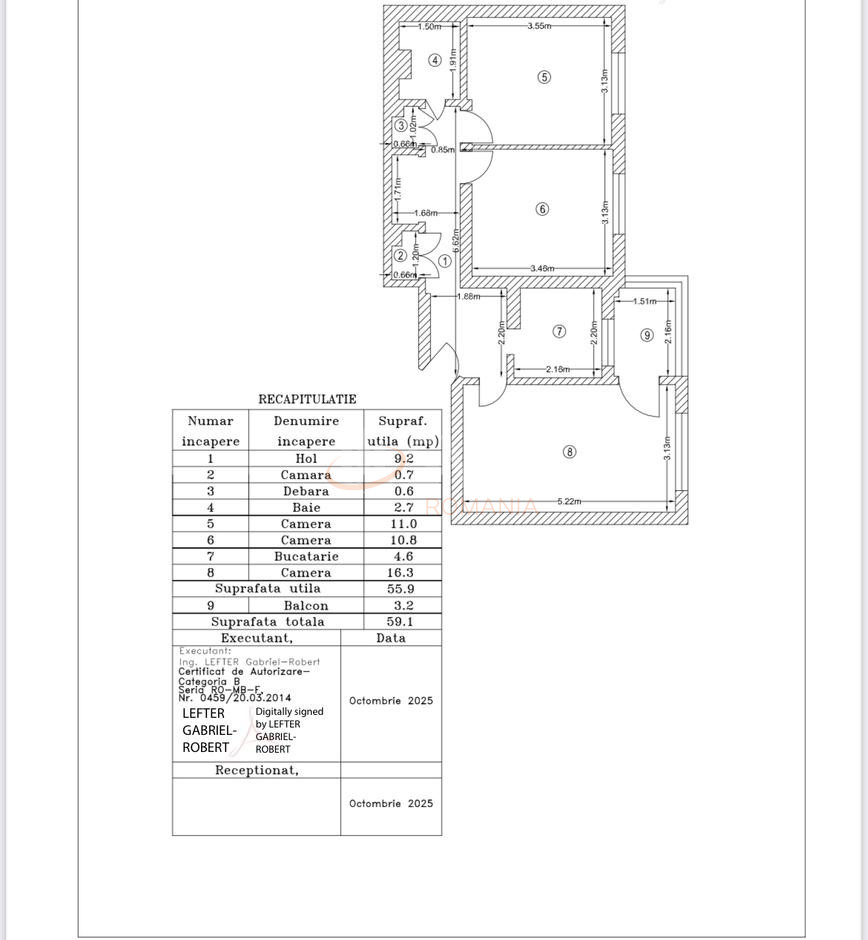
Suprafata construita 67 mp

Suprafata utila 56 mp

Regim Inaltime 2 / 8

Etaj 2

Nr. camere 3 camere

Nr. bai 1

Nr. balcoane 1 balcon

Confort 1

Compartimentare Decomandat

Tip constructie In bloc

Status constructie Finalizat

Disponibila incepand cu 2026-01-29

Judet Bucuresti

Oras/ Sector Sector 3

Zona Nicolae Grigorescu

Gps lat 44.413643

Gps lng 26.155705

Cablu TV

Curent electric

Internet prin cablu

Internet Wireless

Interfon

Geamuri termopan

Balcon inchis

Parchet

Gresie

Faianta

Gaz

Calorifere

Mobilat

Bucatarie mobilata

Bloc reabiliat termic

Lift

Apartament 3 camere I Nicolae Grigorescu I Vanzare

Proprietate vanduta

Ai o proprietate similara? Vinde-o cu noi.
Vinde apartament

Cod: REA1027333

Proprietati similare

Bucuresti, Titan, Liviu Rebreanu

Apartament, 3 camere

60 mp P 2026

105.700 EUR

Detalii

Bucuresti, Pantelimon

Apartament, 3 camere

59.68 mp 10 1983

102.500 EUR

Detalii
Exclusiv Discount

Bucuresti, Unirii, Unirii (s3)

Apartament, 3 camere

56 mp 3 1930

89.900 EUR

Detalii

Bucuresti, Dacia, Armeneasca

Apartament, 3 camere

56 mp 3 1930

89.900 EUR

Detalii

Bucuresti, Berceni

3 camere cu loc parcare exterior inclus

68 mp 3 1968

105.000 EUR

Detalii

Bucuresti, Dacia

Apartament, 3 camere

70 mp 2 1960

99.999 EUR

Detalii

Bucuresti, Berceni

Apartament, 3 camere

67.29 mp 3 1974

99.000 EUR

Detalii

Bucuresti, Colentina

Apartament, 3 camere

61 mp 6 1969

105.000 EUR

Detalii
Apartamente 3 camere vandute in Titan, Bucuresti Apartamente 3 camere de vanzare in Titan, Bucuresti

Afla primul de cele mai bune oferte
inainte sa ajunga pe piata

Aboneaza-te la newsletter

Aboneaza-te la notificari