Apartament, 3 camere, Bucuresti / Titan / Theodor Pallady
Apartamentul este situat la etajul 7 din 7 al unui imobil finalizat in anul 2021.
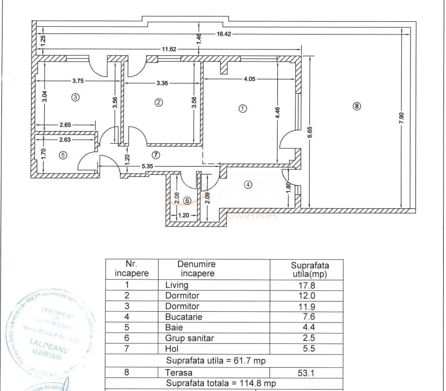
Apartamentul dispune de o compartimentare decomandata, fiind compus din: hol, living, bucatarie, 2 dormitoare, 2 bai, toate acestea avand suprafata totala de 61.7mp + terasa de 53 mp.
Apartamentul este finisat, dispune de camere luminoase, parchet, gresie, faianta, usa metalica la intrare, centrala proprie.
In vecinatate regasim la doar 10 minute de mers pe jos statia de metrou Nicolae Teclu si alte mijloace de transport in comun. Puncte de interes in apropiere: magazine, hipermarketuri, restaurante, scoli, parcuri.
Nu detinem informatii despre clasa energetica a imobilului.
Pentru mai multe detalii si vizionari va stau la dispozitie.
Atribute
An constructie 2020
Suprafata construita 120 mp
Suprafata utila 114.8 mp
Suprafata terasa 53.1
Regim Inaltime 7 / 7
Etaj 7
Nr. camere 3 camere
Nr. bai 2
Nr. balcoane 0 balcoane
Confort 1
Compartimentare Decomandat
Tip constructie In bloc
Status constructie Finalizat
Disponibila incepand cu 2022-06-22
Judet Bucuresti
Oras/ Sector Sector 3
Zona Theodor Pallady
Gps lat 44.413001
Gps lng 26.182183
Nr. terase 1
Facilitati
Supraveghere 24/7
Detector de gaze
Interfon
Curent electric
Supraveghere video
Internet prin fibra optica
Geamuri termopan
Parchet
Apometre
Gresie
Telefon
Faianta
Gaz
Incalzire proprie
Lift
Apartament 3 camere finalizat cu terasa Theodor Pallady
Proprietate vanduta
Ai o proprietate similara? Vinde-o cu noi.
  Vinde apartament  
 
  
  
  
  
  
  
  
  
  
  
  
  
   
   
   
   
   
  
  
   
   
   
   
   
  
  
   
   
   
   
   
  
  
   
   
   
   
   
  
  
   
   
   
   
   
  
  
   
   
   
   
   
  
  
   
   
   
   
   
  
  
   
   
   
   
  