Crangasi 3 camere 67 mp 8 1986

SVN Residentialist va propune spre vanzare un apartament cu 3 camere, semidecomandat, situat la etajul 8 din 8 al unui bloc construit in anul 1986.

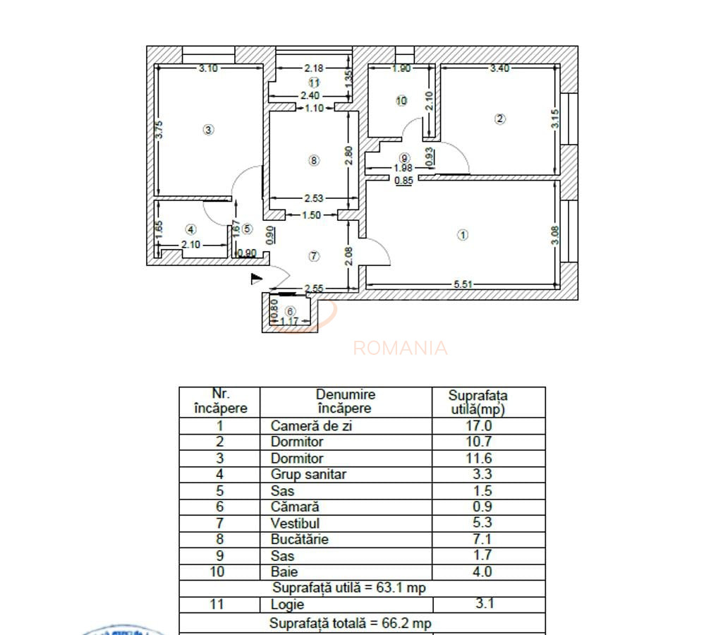
Apartamentul are o suprafata de 67 mp si beneficiaza de terasa refacuta complet anul trecut, un avantaj important pentru confort si siguranta. Proprietatea se vinde complet mobilata si utilata, exact ca in fotografii, fiind pregatita pentru mutare imediata.

Compartimentarea este eficienta, cu spatii bine proportionate si luminoase. Pozitionarea la ultimul etaj ofera liniste, intimitate si o priveliste deschisa.

Imobilul este ideal atat pentru locuinta personala, cat si pentru investitie, fara a necesita lucrari sau costuri suplimentare.

An constructie 1986

Suprafata construita 86 mp

Suprafata utila 67 mp

Regim Inaltime 8 / 8

Etaj 8

Nr. camere 3 camere

Nr. bai 1

Nr. balcoane 0 balcoane

Confort 1

Compartimentare Semidecomandat

Tip constructie In bloc

Status constructie Finalizat

Disponibila incepand cu 2026-01-22

Judet Bucuresti

Oras/ Sector Sector 6

Zona Crangasi

Gps lat 44.452824

Gps lng 26.052890

Curent electric

Repartitoare

Parchet

Apometre

Gresie

Faianta

Mobilat

Aer conditionat

Bucatarie mobilata

Lift

Valoare proprietate (€)

Perioada (ani)

Procent avans (20.250 €)


Suma creditata 114.750

Dobanda 4.9%

Rata lunara 2.837 lei

Broker Imobiliar

Anca Costache , Consultant imobiliar Vezi toate proprietatile

0317100200

Apartament 3 camere Crangasi

Pret vanzare
135.000 €

Telefon Consultant imobiliar
0317100200

Cod: REA1027099

Proprietati similare

Bucuresti, Crangasi

Apartament, 3 camere

60 mp 4 1977

140.000 EUR

Detalii
Exclusiv Discount

Bucuresti, 1 Mai, Banu Manta

Apartament, 3 camere

70 mp 8 1976

129.900 EUR

Detalii

Bucuresti, Gara De Nord, Grivita

Apartament, 3 camere

60.38 mp 1 1965

138.000 EUR

Detalii

Bucuresti, Militari, Politehnica

Apartament, 3 camere

58.7 mp 3 1976

145.000 EUR

Detalii

Bucuresti, Militari, Lujerului

Apartament, 3 camere

67 mp 12 1978

140.000 EUR

Detalii

Bucuresti, Militari, Uverturii

Apartament, 3 camere

67.55 mp 1 2025

122.655 EUR

Detalii

Bucuresti, Militari, Apusului

Apartament, 3 camere

63.6 mp 2 1984

127.000 EUR

Detalii

Bucuresti, 13 Septembrie

Apartament, 3 camere

74.14 mp 8 1989

144.000 EUR

Detalii
Apartamente 3 camere vandute in Crangasi, Bucuresti Apartamente 3 camere de vanzare in Crangasi, Bucuresti

Afla primul de cele mai bune oferte
inainte sa ajunga pe piata

Aboneaza-te la newsletter

Aboneaza-te la notificari