Crangasi 4 camere 82 mp P 1983

Va propunem spre vanzare un apartament in zona Crangasi, la 7 minute de metrou.
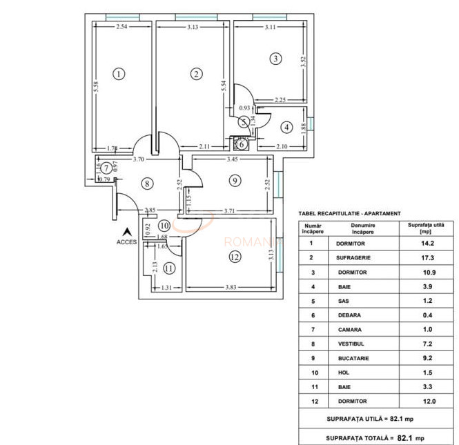
Apartamentul are 4 camere, 2 bai, bucaatarie, holuri.
Blocul nu este reabilitat si apartamentul necesita unele renovari.

Pentru mai multe detalii nu ezitati sa ne contactati!

An constructie 1983

Suprafata construita 95 mp

Suprafata utila 82 mp

Regim Inaltime P / 8

Etaj P

Nr. camere 4 camere

Nr. bai 2

Nr. balcoane 0 balcoane

Confort 1

Compartimentare Semidecomandat

Tip constructie In bloc

Status constructie Finalizat

Disponibila incepand cu 2023-06-21

Judet Bucuresti

Oras/ Sector Sector 6

Zona Crangasi

Gps lat 44.454475

Gps lng 26.051495

Interfon

Supraveghere video

Curent electric

Geamuri termopan

Repartitoare

Parchet

Apometre

Gresie

Faianta

Calorifere

Crangasi I 4 camere I parter

Proprietate vanduta

Ai o proprietate similara? Vinde-o cu noi.
Vinde apartament

Cod: REA1015307

Proprietati similare

Bucuresti, Kiseleff

Apartament, 4 camere

89.76 mp 3 1940

139.000 EUR

Detalii

Bucuresti, Ultracentral, Kogalniceanu

Apartament, 4 camere

98.5 mp 6 1939

136.000 EUR

Detalii

Bucuresti, Ultracentral, Mitropolie

Apartament, 4 camere

72 mp D 1929

124.000 EUR

Detalii

Bucuresti, Colentina, Doamna Ghica

Apartament, 4 camere

96.5 mp 8 1990

140.000 EUR

Detalii

Bucuresti, Baneasa

Apartament, 4 camere

90 mp P 2008

140.000 EUR

Detalii

Bucuresti, Dristor

Apartament, 4 camere

84.61 mp 10 1977

134.990 EUR

Detalii

Bucuresti, Pantelimon

Apartament, 4 camere

80 mp 10 1975

130.000 EUR

Detalii

Bucuresti, Berceni, Aparatorii Patriei

Apartament, 4 camere

81.57 mp P 1981

140.000 EUR

Detalii
Apartamente 4 camere vandute in Crangasi, Bucuresti Apartamente 4 camere de vanzare in Crangasi, Bucuresti

Afla primul de cele mai bune oferte
inainte sa ajunga pe piata

Aboneaza-te la newsletter

Aboneaza-te la notificari