Apartament, 3 camere, Bucuresti / Militari / Grozavesti
Apartamentul se vinde mobilat si utilat complet, exact cum apare in fotografii.
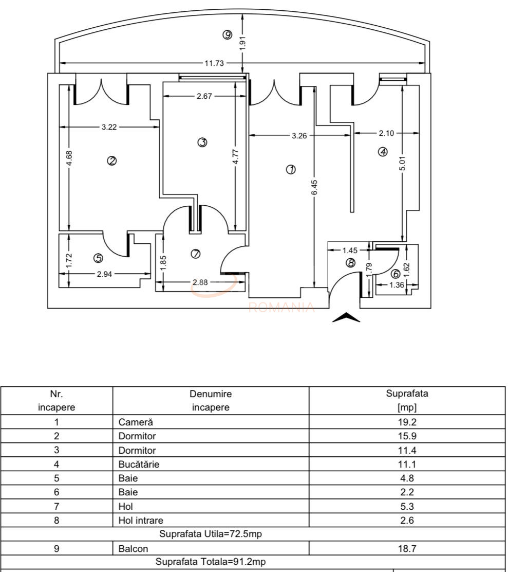
Apartamentul se afla la etajul 4 din 11 a unui imobil finalizat in anul 2008 si are o suprafata utila de 91,2 mp, fiind compus dintr-un Living ce are delimitata o zona pentru bucatarie tip open-space, doua dormitoare, 2 bai, un hol si o terasa generoasa cu o suprafata de 18,7 mp
Certificatul energetic va fi disponibil la momentul vanzarii.
Pentru mai multe detalii sau stabilirea unei vizionari nu ezitati sa ne contactati.
Atribute
An constructie 2008
Suprafata construita 104.88 mp
Suprafata utila 91.2 mp
Suprafata terasa 18.7 mp
Regim Inaltime 4 / 11
Etaj 4
Nr. camere 3 camere
Nr. bai 2
Nr. balcoane 0 balcoane
Confort 1
Compartimentare Semidecomandat
Tip constructie In bloc
Status constructie Finalizat
Disponibila incepand cu 2024-01-10
Judet Bucuresti
Oras/ Sector Sector 6
Zona Grozavesti
Gps lat 44.443508
Gps lng 26.067268
Nr. terase 1
Clasa energetica 1
Facilitati
Interfon
Detector de gaze
Curent electric
Supraveghere video
Internet prin cablu
Sistem de alarma
Geamuri termopan
Repartitoare
Parchet
Apometre
Gresie
Faianta
Gaz
Calorifere
Incalzire proprie
WC serviciu
Mobilat
Aer conditionat
Bucatarie mobilata
Lift
Apartament 3 camere Orhideea Garden
Proprietate vanduta
Ai o proprietate similara? Vinde-o cu noi.
  Vinde apartament  
 
  
  
  
  
  
  
  
  
  
  
  
  
  
  
  
  
  
  
  
   
   
   
   
   
  
  
   
   
   
   
   
  
  
   
   
   
   
   
  
  
   
   
   
   
   
  
  
   
   
   
   
   
  
  
   
   
   
   
   
  
  
   
   
   
   
   
  
  
   
   
   
   
  