Otopeni 3 camere 133.7 mp P + 1 + M 32 mp

SVN Romania va propune spre vanzare o vila tip duplex cu 3 camere, situata in Otopeni - 23 August.

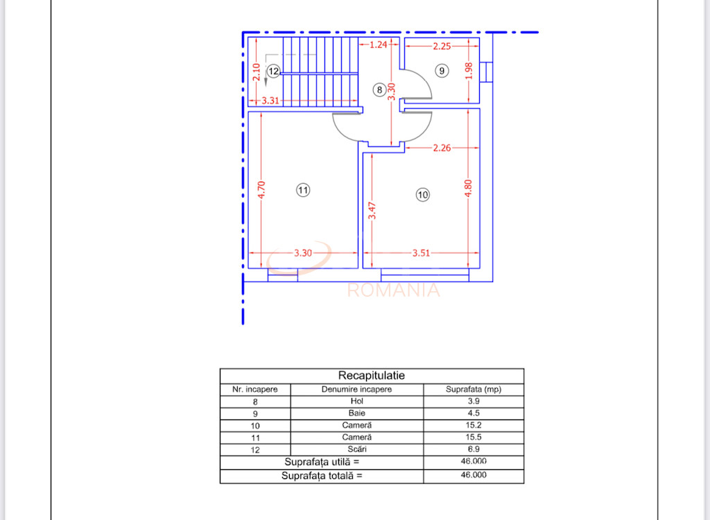
Proprietatea are 3 camere, dintre care 2 dormitoare si un living, 2 bai si o terasa la etajul 2. Suprafata totala este de 134 mp si are o curte de 32 mp.

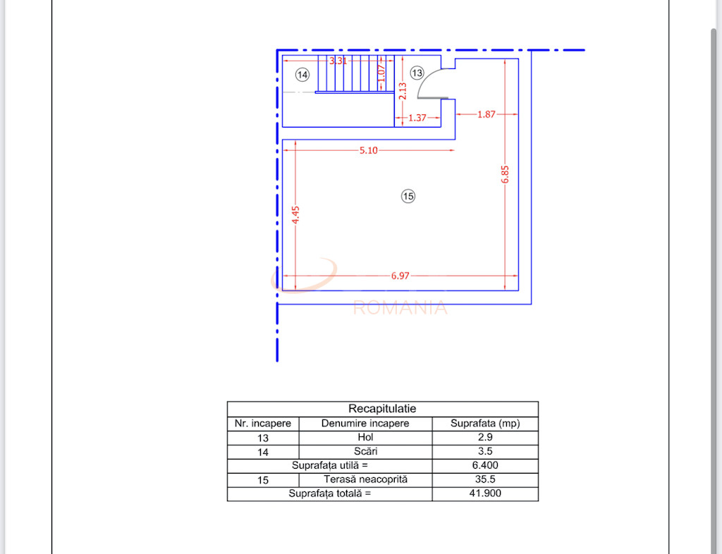
Vilele au regim de înaltime P+1E+M dispuse astfel: la parter avem living cu bucatarie deschisa, spatiu depozitare, baie cu dus, hol si scara de acces catre etajul 1 unde regasim 2 dormitoare si o baie; in continuare, scarile de acces ne conduc catre mansarda unde regasim o terasa de 35.5 mp.

Casa este echipata cu incalzire prin pardoseala, centrala termica, tamplarie Salamander geam tripan, obiecte sanitare, gresie, faianta si parchet special pentru incalzirea in pardoseala, intrerupatoare cu senzor si prize modulare, impamantare, hidroizolatii profesionale la terase, curte amenajata, 2 locuri de parcare (incluse in pret), racordata la toate utilitatile (canalizarea va fi finalizata pana la sfarsitul anului).

In vecinatate, la doar 2 minute distanta de mers cu masina se afla Lidl, Mega si Penny, iar statia de autobuz este la 2 minute de mers pe jos.

Certificatul enegetic va fi disponibil la momentul vanzarii.

Pentru mai multe informatii si vizionari, sunati-ma chiar acum!

An constructie 2022

Suprafata construita 154 mp

Suprafata utila 133.7 mp

Regim Inaltime P + 1 + M

Etaj P + 1 + M

Nr. camere 3 camere

Nr. bai 2

Nr. balcoane 0 balcoane

Tip constructie Vila

Status constructie Finalizat

Teren suprafata 32 mp

Curte Individuala Da

Disponibila incepand cu 2024-05-13

Judet Ilfov

Oras/ Sector Nord

Zona Otopeni

Gps lat 44.554011

Gps lng 26.101177

Nr. terase 1

Acoperis mansardat

Anexa

Geamuri termopan

Telefon

Parchet

Apa

Gresie

Gaz

Faianta

Incalzire prin pardoseala

Parcare in curte

Incalzire centrala termica

Fosa septica

Sistem de alarma

Detector de gaze

Termoizolatie

Internet prin fibra optica

Curent electric

Cablu TV

Gradina

WC serviciu

Vila Duplex 3 Camere Otopeni 23 August

Proprietate vanduta

Ai o proprietate similara? Vinde-o cu noi.
Vinde apartament

Cod: REV2002426

Proprietati similare

Ilfov, Nord, Balotesti

Casa, 3 camere

100 mp P + 1 2023

145.000 EUR

Detalii

Ilfov, Est, Pantelimon

Casa, 3 camere

89 mp P + M 2025

135.000 EUR

Detalii

Ilfov, Nord, Ciolpani

Casa, 3 camere

84 mp P + M 2025

135.000 EUR

Detalii
Case 3 camere vandute in Nord, Ilfov Case 3 camere de vanzare in Nord, Ilfov

Afla primul de cele mai bune oferte
inainte sa ajunga pe piata

Aboneaza-te la newsletter

Aboneaza-te la notificari