Pipera 5 camere 225 mp P + 2 255 mp

SVN Residentialist va prezinta un proiect rezidential ce cuprinde un complex de 16 vile de lux tip duplex, dispuse in 2 grupuri de 8 vile, avand o pozitionare deosebita, un design modern, construit cu materiale de cea mai buna calitate, oferind stilul de viata mult dorit.

Complexul este situat in zona de NORD, la cateva minute de parcul Herastrau si cu acces rapid la scoli, gradinite, banci, clinici, mall-uri.
Vila este situata pe un lot de teren de 255 mp si dispune de curte proprie, 2 locuri de parcare, avand un regim de inaltime P+2, inteligent compartimentata astfel incat suprafata utila de 225 mp impreuna cu terasele generoase sa creeze casa de vis.

Vilele sunt organizate in front inchis, cu o structura functionala colectiva, cu fatada ventilata si spatii vitrate generoase.
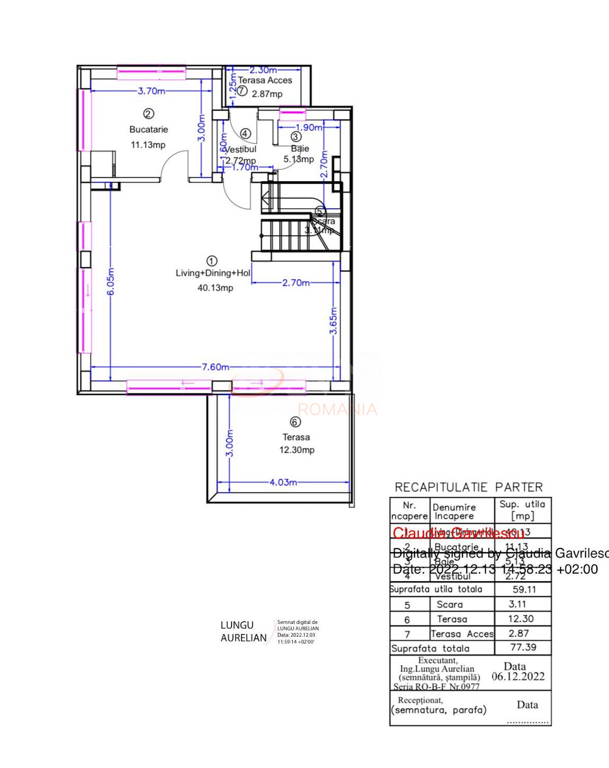
Fiecare vila va avea urmatoarea compartimentare:
-la parter zona de living si dining, bucatarie, baie si terasa.
-la etajul 1, 3 dormitoare, dintre care un dormitor matrimonial cu baie proprie, baie principala si doua balcoane.
-la etajul 2, terasa foarte generoasa de aproximativ 45 mp. si un dormitor matrimonial cu baie.
Vilele vor fi livrate cu finisaje premium si cu baile complet utilate.
Avantaje:
Iluminat stradal
Proximitate fata de zonele de interes
Confort termic sporit datorita materialelor din clasa superioara
Supraveghere video
Despre proiect:
Finisaje si dotari:
- Zidarie este din caramida Porotherm N+F, atat la exterior cat si la interior, cu o grosime a peretilor exteriori de 30cm.
- Fatada ventilata,
- Izolatie termica cu vata bazaltica de 10cm, pentru o foarte buna protectie termica si fonica.
- Usi intrare antiefractie si usi interior de inalta calitate PINUM;
- Parchet laminat 10-12mm,
- Gresie si faianta MARAZZI;
- Geamuri SALAMANDER
- Rulouri electrice
- Obiecte sanitare si baterii de la IDEAL STANDARD
- Centrala termica in condensatie, VIESSMAN, de 32 KW
- Aer conditionat GREE
- Sistem Smart Home
- Instalatiile termice se vor realiza in varianta incalzirii in pardoseala cu circuite si distribuitoare independente pe fiecare incapere + radiator tip scarita in bai cu robinet termostatat.

Pentru mai multe detalii si vizionari va rog sa ma contactati.

An constructie 2023

Suprafata construita 255 mp

Suprafata utila 225 mp

Regim Inaltime P + 2

Etaj P + 2

Nr. camere 5 camere

Nr. bai 4

Nr. balcoane 4 balcoane

Tip constructie Vila

Status constructie Finalizat

Amprenta la sol 79

Teren suprafata 255 mp

Curte Individuala Da

Disponibila incepand cu 2023-06-27

Judet Bucuresti

Oras/ Sector Sector 1

Zona Pipera

Gps lat 44.495005

Gps lng 26.129379

Nr. terase 1

Spatiu de joaca

Geamuri termopan

Parchet

Apa

Gresie

Gaz

Faianta

Canalizare

Incalzire prin pardoseala

Parcare in curte

Incalzire centrala termica

Aer conditionat

WC serviciu

Spatiu de depozitare

Termoizolatie

Curent electric

Gradina

Plansee beton

Smart Home Vila Pipera 225 mp

Proprietate vanduta

Ai o proprietate similara? Vinde-o cu noi.
Vinde apartament

Cod: REV2002511

Proprietati similare

Bucuresti, Pipera

Casa, 5 camere

260 mp P + 1 + M 2011

360.000 EUR

Detalii

Bucuresti, Pipera

Casa, 5 camere

114 mp P + 1 + M 2023

396.000 EUR

Detalii

Bucuresti, Pipera

Casa, 5 camere

183.63 mp P + 2 2027

355.000 EUR

Detalii

Bucuresti, Pipera

Casa, 5 camere

183.63 mp P + 2 2027

355.000 EUR

Detalii

Bucuresti, Pipera

Casa, 5 camere

183.63 mp P + 2 2027

355.000 EUR

Detalii

Bucuresti, Pipera

Casa, 5 camere

183.63 mp P + 2 2027

355.000 EUR

Detalii

Bucuresti, Dacia, Armeneasca

Casa, 5 camere

130 mp S + P + M 1935

339.990 EUR

Detalii

Bucuresti, Crangasi

Casa, 5 camere

276 mp P + 1 + M 2005

390.000 EUR

Detalii
Case 5 camere vandute in Pipera, Bucuresti Case 5 camere de vanzare in Pipera, Bucuresti

Afla primul de cele mai bune oferte
inainte sa ajunga pe piata

Aboneaza-te la newsletter

Aboneaza-te la notificari