Pipera 5 camere 150 mp P + 1 + M 250 mp

Va prezentam o vila superba cu 5 camere si 4 bai, situata in zona Pipera, langa Scoala Americana, ideala pentru familii cu copii sau ca investitie pentru inchiriere.

Vila este mobilata complet si beneficiaza de dotari moderne precum aparate de aer conditionat Gree si jaluzele electrice, iar terasa spatioasa este perfecta pentru momente de relaxare.

Proximitatea fata de scolile de prestigiu din zona adauga un avantaj considerabil pentru familiile care cauta o locuinta intr-o zona linistita si sigura.

Detalii constructive si finisaje:

-Structura: Beton armat monolit, oferind o rezistenta si durabilitate superioare.
-Fatada: Anvelopata cu EPS80 de 15 cm, asigurand o izolare termica excelenta.
-Tamplarie exterioara: Profile REHAU TRIPAN, pentru o izolare fonica si termica optima.
-Acoperis: Tigla metalica BILKA, de calitate superioara,
-Ferestre mansarda: Ferestre VELUX, care aduc lumina naturala si confort.
-Termoizolatie mansarda: Spuma pompata cu celula deschisa, de productie poloneza, pentru o izolatie eficienta.
-Compartimentarea peretilor si tencuieli: Realizate cu produse Rigips, asigurand finisaje de calitate.
-Sistem de incalzire in pardoseala: Marca REHAU, pentru un confort termic superior pe tot parcursul anului.
-Instalatii sanitare: Tevi PPR de inalta calitate, durabile si eficiente.
-Vase WC: GROHE, sinonim cu fiabilitatea si designul modern.
-Centrala termica: WIESSMAN, asigurand eficienta si economie energetica.

Vila dispune de 2 locuri de parcare, oferind un plus de confort si accesibilitate pentru viitorii proprietari.

Aceasta proprietate reprezinta alegerea perfecta pentru cei care cauta o locuinta moderna, confortabila si sigura in apropierea celor mai bune scoli din zona.

Pentru detalii si vizionari, nu ezitati sa ma contactati.

An constructie 2022

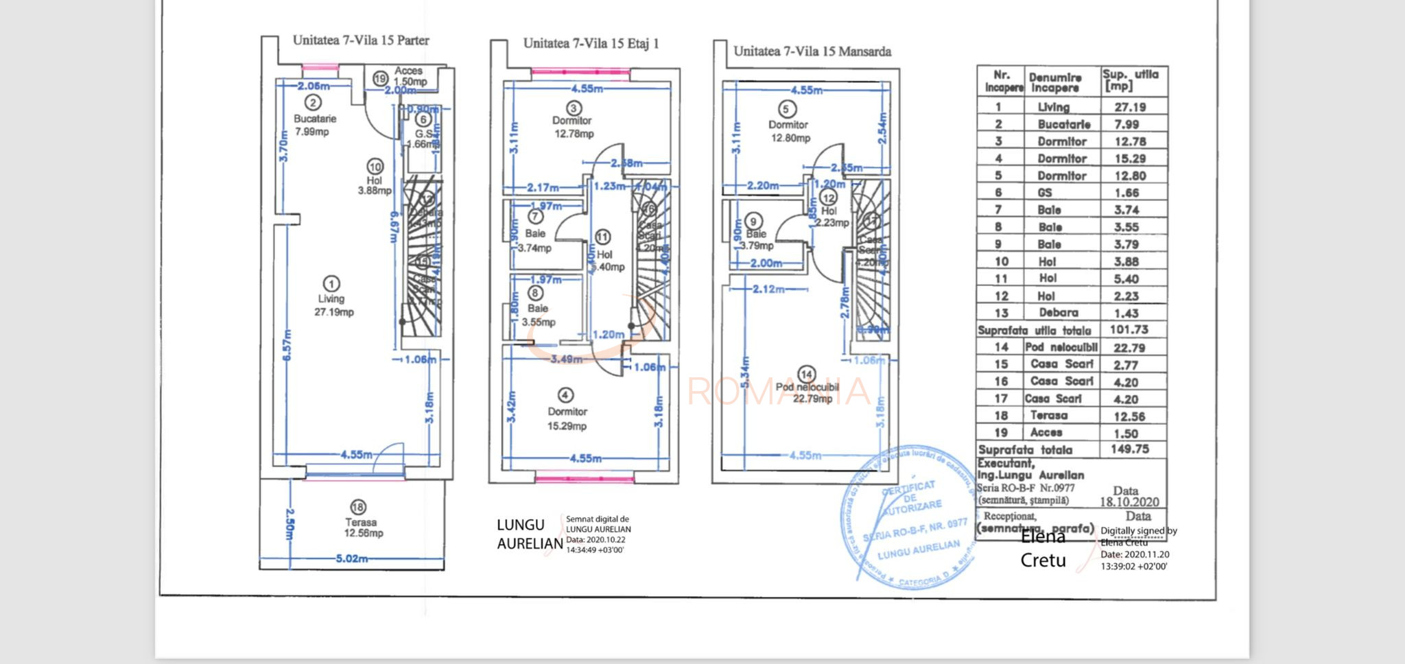
Suprafata construita 170 mp

Suprafata utila 150 mp

Regim Inaltime P + 1 + M

Etaj P + 1 + M

Nr. camere 5 camere

Nr. bai 4

Nr. balcoane 0 balcoane

Tip constructie Vila

Status constructie Finalizat

Teren suprafata 250 mp

Curte Individuala Da

Disponibila incepand cu 2024-10-14

Judet Bucuresti

Oras/ Sector Sector 1

Zona Pipera

Gps lat 44.515787

Gps lng 26.145954

Geamuri termopan

Parchet

Apa

Gresie

Gaz

Faianta

Incalzire prin pardoseala

Aer conditionat

WC serviciu

Spatiu de depozitare

Internet Wireless

Curent electric

Cablu TV

Gradina

Pod

Vila superba Pipera I Curte I Mobilata

Proprietate vanduta

Ai o proprietate similara? Vinde-o cu noi.
Vinde apartament

Cod: REV2004357

Proprietati similare

Bucuresti, Pipera

Casa, 5 camere

183.63 mp P + 2 2027

290.000 EUR

Detalii

Bucuresti, Pipera

Casa, 5 camere

183.63 mp P + 2 2027

290.000 EUR

Detalii

Bucuresti, Pipera

Casa, 5 camere

183.63 mp P + 2 2027

290.000 EUR

Detalii

Bucuresti, Pipera, Iancu Nicolae

Casa, 5 camere

183.63 mp P + 2 2027

290.000 EUR

Detalii

Bucuresti, Pipera, Iancu Nicolae

Casa, 5 camere

183.63 mp P + 2 2027

290.000 EUR

Detalii

Bucuresti, Pipera

Casa, 5 camere

183.63 mp P + 2 2027

290.000 EUR

Detalii

Bucuresti, Pipera

Casa, 5 camere

183.63 mp P + 2 2027

290.000 EUR

Detalii

Bucuresti, Pipera

Casa, 5 camere

183.63 mp P + 2 2027

290.000 EUR

Detalii
Case 5 camere vandute in Pipera, Bucuresti Case 5 camere de vanzare in Pipera, Bucuresti

Afla primul de cele mai bune oferte
inainte sa ajunga pe piata

Aboneaza-te la newsletter

Aboneaza-te la notificari